Agassiz – Local MP Brad Vis (Mission-Matsqui-Fraser Canyon)and MLA Kelli Paddon (Chilliwack-Kent) were all smiles, after Wednesday’s unveiling for funding of a new aquatic Centre for Agassiz.
Vis stated in a media release that this ends years of lobbying for the residents of Agassiz and Harrison to replace the old facility next to the Agassiz Agriculture Hall.

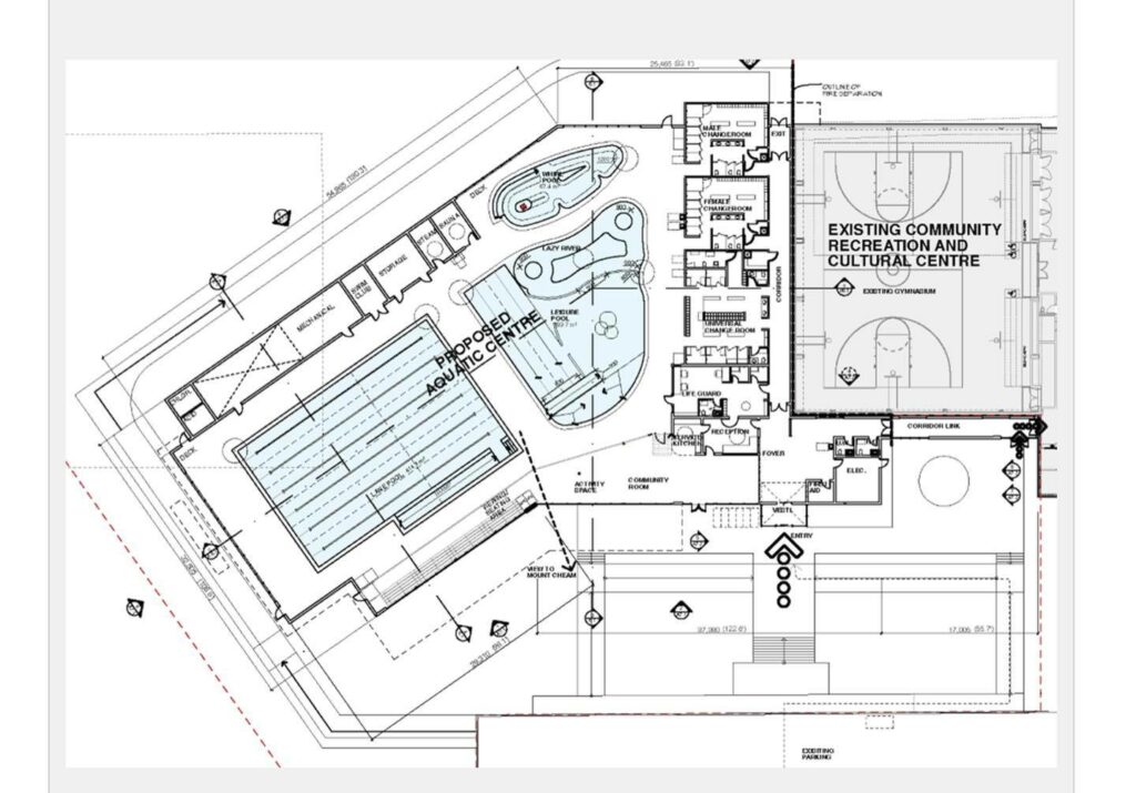
Fantastic to have multiple levels of government working together for our #ChilliwackKent community! With $9.5 million coming from the Province of BC, $3.6 million from @KentBC1 & $454,000 in federal funding for the District of Kent Aquatic Centre. @nathancullen pic.twitter.com/IP7dPvJ8di
— Kelli Paddon MLA (@kellipaddon) April 13, 2022
Beautiful day for an announcement as we celebrate a $10M investment in @KentBC1 for an Aquatic Centre! Thank you Minister @nathancullen for coming out to share the great news and to Mayor Pranger, CAO Mah, Jennifer Thornton & councillor @susanspaeti #ChilliwackKent #Agassiz pic.twitter.com/nCmpmRNOnU
— Kelli Paddon MLA (@kellipaddon) April 13, 2022






